Jump to content

Montare tempomat (Cruise control) la O1 aftersale


danutz
 Share

Postare recomandată

Nu sunt suficienti acei 4 pini, trebuie 6 . Conform schemei postate in acest topic.

Modificat de Al Bundy
Link către comentariu
Distribuie pe alte siteuri

Multumesc pt. raspuns,insa va rog....puteti sa-mi dati linkurile exacte sa vad si eu unde vin exact cele 6 cabluri colorate pe mufa de pe batul cu butoane,caci pe dispozitiv sunt dispuse altfel fata de mufa neagra,si inteleg din opicurile anterioare ca va trebui sa umblu pina la tabloul de siguranta,caci de la ECU la Relee la benzinare sunt trase?.....repet este un motor BFQ....dvs. ati postat explicit cu fotografii cum se dezasambleaza si cum se conecteaza....am inteles pina la firul albastru din tabloul de sigurante....e mai greu sa deslusesc de la bat,catre restul si cum sunt dispuse.....la afoni sa nu aveti pretentii in sensul ca sunt cadru medical

Link către comentariu
Distribuie pe alte siteuri

Nu ai pinii trasi in mufa intermediara, deci trebuie sa te duci pana in ECU.

Ai 6 fire in maneta - doua se leaga impreuna 4 cu 7, iar 6 este alimentarea.

Sarind peste mufa intermediara, trebuie sa faci urmatoarele legaturi

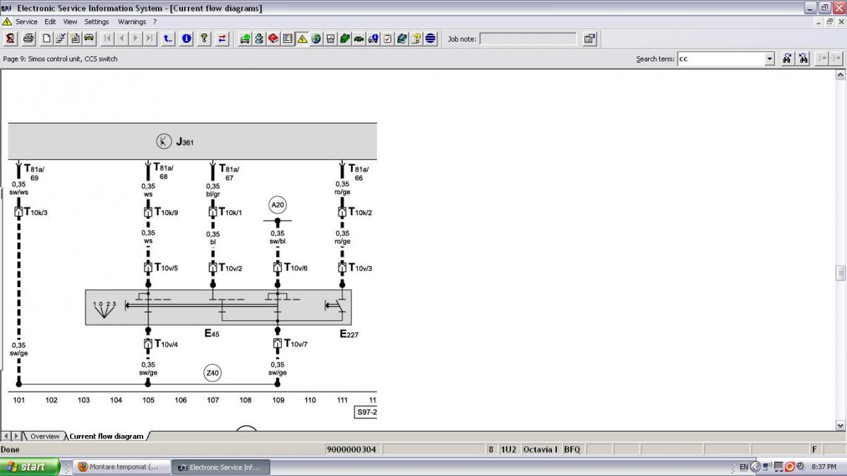
pin 2 maneta - te duci in pin 67 din mufa T81a - mufa ECU

pin 3 maneta - te duci in pin 66

pin 4 impreuna cu pin 7 - te duci in pin 69

pin 5 maneta - te duci in pin 68

pin 6 maneta - alimentare - la siguranta 5 din blocul cu sigurante.

Poze si restul - trebuie sa cauti un pic.. din pacate nu putem face cate un DIY la fiecare masina.....

Ti-am atasat si schema electrica.

post-30007-0-32753500-1334597737_thumb.j

Modificat de F l o r i n
Link către comentariu
Distribuie pe alte siteuri

De real folos cu multumiri pt. cunoscatori,caci ,chear am reusit sa fac cablul,si am inteles perfect ce am de facut....urmeaza practica.....insa inainte de a ma apuca,un coleg posta ca a intampinat probleme la maneta ce avea o urechiusa rupta.....rog sa-mi raspunda(desi i-am cautat postarea,nu a mai fost chip sa o gasesc,desi avea si fotografia explicita ce ma facut sa verific si eu,si sunt in acceasi situatie),deci intreb este greu de schimbat corpul celei normale cu cel defect,pt. ca trebuie mutata si mufa cu panglicile conectoare,si nu stiu daca are locasul de prindere pe suportul fara CC.Cu cordialitate.

Link către comentariu
Distribuie pe alte siteuri

Maneta fara CC are tot pe corpul ei. Tu scoti doar levierul cu banda flexibila si il muti pe cea stock.

La ce ureche te referi, la aia in care se fixeaza mufa ? daca da, lipeste mufa pe corpul manetei, ca nu-i bai.

P.S. - daca intampini probleme la montaj, ma suni si iti zic prin telefon, ce ai de facut.

Spor la treaba !

Modificat de F l o r i n
Link către comentariu
Distribuie pe alte siteuri

Sunt fericit si mandru ca spiritul de ajutor inca exista....sincer pina acum am intanlit numai persoane care spuneau.....nu stiu,sa veniti cu piesele si vedem,asa am luat si tempomatul,pe incredere.Multa sanatate tuturor! :beer:

Link către comentariu
Distribuie pe alte siteuri

Ai reusit sa te legi cu firele pana in ECU ?

Link către comentariu
Distribuie pe alte siteuri

  • 1 month later...
cristy_rediu

Am gasit cateva discutii contradictorii pe forum (si pe altele nemtesti) referitoare la montarea de cc la motoarele pe benzina cu acceleratie prin cablu. Desi initial eram 100% convins ca nu se poate acum parca am ceva dubii gandindu-ma ca si la aceste motoare trebuie adaptata clapeta de acceleratie(deci are ceva electric in ea) si ca se autoajusteaza si pentru mentinerea relantiului la valoarea dorita(sau isi modifica relantiul doar prin cantitatea de benzina injectata?). Cunoaste cineva vre-un caz in care s-a montat cc la motor cu acceleratie prin cablu?

Link către comentariu
Distribuie pe alte siteuri

Sigur, important e tipul de clapeta si codul de motor.

In functie de astea, se monteaza mai usor sau cu mai multe componente.

Link către comentariu
Distribuie pe alte siteuri

cristy_rediu

Codul motor e AQY, referitor la tipul de clapeta la ce ar trebui sa ma uit? sau cum se poate vedea mai usor diferenta? M-ar interesa doar daca ar fi posibil fara acel kit cu motoras care sa traga cablul de acceleratie, nu mi se pare pare prea fiabil si presupun ca e scump si mult de lucru.

Link către comentariu
Distribuie pe alte siteuri

Am o O1 tdi si am cumparat maneta de tempomat de la dezmembrari inpreuna cu 20cm de cablu si am luat si mufa neagra de sub stergator si aia cu vreo 5cm de cablu(amandoua taiate ca nu am putut lua intreg cablul si am luat capetele ca sa zic asa). Acum intrebarea mea este daca se pot scoate pinii din mufa mare neagra(ma refer la cele 2 fire mai groase de alimentare si sa pun direct de la cablul luat sau sa tai firele de alimentare ale masinii si sa le lipesc pe pinii din mufa cumparata de la dezmembrari?) O activare cu vag-com unde gasesc si eu?

Link către comentariu
Distribuie pe alte siteuri

Nu ai nevoie sa faci asa ceva.... fiind Diesel, ai trase cablurile de la ECU pana la mufa neagra. Trebuie sa iti prelungesti firele de la mufa T10 - mufa manetei - pana la mufa neagra - intermediara - si acolo te legi de firele existente.

Link către comentariu
Distribuie pe alte siteuri

Am o O1 tdi si am cumparat maneta de tempomat de la dezmembrari inpreuna cu 20cm de cablu si am luat si mufa neagra de sub stergator si aia cu vreo 5cm de cablu(amandoua taiate ca nu am putut lua intreg cablul si am luat capetele ca sa zic asa). Acum intrebarea mea este daca se pot scoate pinii din mufa mare neagra(ma refer la cele 2 fire mai groase de alimentare si sa pun direct de la cablul luat sau sa tai firele de alimentare ale masinii si sa le lipesc pe pinii din mufa cumparata de la dezmembrari?) O activare cu vag-com unde gasesc si eu?

Scoate firele din mufa negara cumparata de tine si le prelungesti pana la cele din mufa de la maneta si apoi le introduci in mufa existenta sub stergatoare.

Link către comentariu
Distribuie pe alte siteuri

Va multumesc de ajutor. O sa apelez la dv. pentru activarea cu vag-com. Astept weekend-ul sa ajung acasa (garaj) ca aici la faculatate nu am cu ce face treaba.

PS: recomandati vag-com cu interfata de pe okazii sau strict interfete originale? din cate am inteles softul ar fi gratis. si recent mi-am instalat si etka si elsa si incepe sa imi placa domeniul....

Link către comentariu
Distribuie pe alte siteuri

Originala e originala - recomand - .... clonele .. clone... nu stiu ce vrei sa zici prin soft gratis, dar oricum, subiectul asta se discuta in alte topic-uri.

Modificat de F l o r i n
Link către comentariu
Distribuie pe alte siteuri

Da si eu sunt adeptul OEM. Sunt satul de prostii chinezesti. Oricum maneta a fost pe un RS si are 80k e noua aproape.

Despre vag-com nu stiu nimic dar citisem undeva ca doar interfata costa si softul e gratuit. Acum poate zic o prostie mare de tot , de aceea am intrebat. Referito la intrebarea mea initiala: Pot sa activez tempomatul ACUM si sa montez ULTERIOR maneta? sau imi da erori?

Link către comentariu
Distribuie pe alte siteuri

nu e nicio problema, cum faci pasii - nu te afecteaza cu nimic.

Link către comentariu
Distribuie pe alte siteuri

nu e nicio problema, cum faci pasii - nu te afecteaza cu nimic.

Am facut montajul de la tempomat, dar nu mi se activeaza. Am pus poze cu mufa facuta, problema ciudata este firul care se due la FUSE si nu stiu unde vine. de asemeni am facut poza la mufa de sus TATA care intra in mufa mama modificata de mine. Am activat cu VAG-COM cc inainte sa fac montajul. SW de la frana functioneaza. SW de la ambreiaj nu stiu exact cum ar trebui sa functioneze dar mie mi se pare prea scurt pentru ca pedala relaxata nu il apasa, Normal ar trebui sa se comporte ca un intrerpator atunci cand e apasat. o sa pun altul Luni. Dar rog un coleg cu experienta sa imi confirme configuratia firellor de la cablul manetei tempomat.

http://picshare.geenza.com/pics/CC358316.jpg

http://picshare.geenza.com/pics/B83A18AB.jpg

http://picshare.geenza.com/pics/AB854E52.jpg

http://picshare.geenza.com/pics/1E12504F.jpg

Modificat de cr15tian
Link către comentariu
Distribuie pe alte siteuri

In poza 3 ai pe pinul 7 fir negru/galben ? CA nu se vede.

Link către comentariu
Distribuie pe alte siteuri

La tine, ai

pin 2 maneta - in pin 1 mufa intermediara

pin 3 maneta - in pin 2 mufa intermediara

pin 4 si 7 maneta - in pin 3 mufa intermediara

pin 5 maneta - in pin 9 mufa intermediara

pin 6 maneta - alimentare 12v

pune un prinscreen din Engine, blocul 006 - cu pedala de ambreiaj apasata si cu ea libera.

Link către comentariu
Distribuie pe alte siteuri

In poza 3 ai pe pinul 7 fir negru/galben ? CA nu se vede.

La tine, ai

pin 2 maneta - in pin 1 mufa intermediara

pin 3 maneta - in pin 2 mufa intermediara

pin 4 si 7 maneta - in pin 3 mufa intermediara

pin 5 maneta - in pin 9 mufa intermediara

pin 6 maneta - alimentare 12v

pune un prinscreen din Engine, blocul 006 - cu pedala de ambreiaj apasata si cu ea libera.

La mufa care intra in maneta tempomat am urmatoarea configuratie:

pin1-nimic

pin2-albastru

pin3-rosu.galben

pin4-negru.galben

pin5-alb

pin6-albastru.negru

pin7-negru.galben

Eu am unit cele 2 fire negru.galben(pin4 si pin7) si si le-am introdus in pozitia pin3 la mufa care vine sub stergator.

Maneta este modelul cu un singur buton de set pe lateral si a fost pe octavia rs 1.8T.

de asemeni nu stiu ce sa fac cu firul albastru.negru. Nu stiu unde anume sa ii pun .in scema aparae ca FUSE adica siguranta dar probabil ca se pune fuse pe alimentare.Unde sa il conectez, cred ca el e pb. Am schimbat si sw de ambreiaj.

@F l o r i n Configuratia este corecta facuta(desfacut inca odata ca sa fiu sigur si am facut si poze dar a mers foarte repede acum)

Modificat de cr15tian
Link către comentariu
Distribuie pe alte siteuri

albastru/negru il duci la siguranta Sc5. din panoul din stanga bordului.

Link către comentariu
Distribuie pe alte siteuri

Va multumesc, Merge Tempomatul.

Multumiri AlBundy si F l o r i n

Modificat de cr15tian
Link către comentariu
Distribuie pe alte siteuri

Cum as putea sa verific cu Vag Com daca masina mea suporta Cruise Control? In special ECU si apoi clapeta o sa incerc sa o verific dupa codul produs daca nu se poate cu vag com. Parca nu prea am curaj sa imi cumpar kit-ul inainte sa fiu sigur ca suporta.

Link către comentariu
Distribuie pe alte siteuri

Eu nu am gasit in scheme CCS pe AQY 2000.

Link către comentariu
Distribuie pe alte siteuri

Pentru a adăuga comentarii este necesară înregistrarea sau autentificarea

Trebuie să aveţi un cont de membru pentru a adăuga comentarii

Înregistrare membru

Înscrierea unui nou cont de membru. Este foarte uşor!

Înregistrare cont nou

Autentificare

Aveţi deja un cont de membru? Conectaţi-vă aici.

Autentificare în cont
 Share

  • Activi pe această pagină   0 membri

    • Niciun utilizator înregistrat nu vizualizează această pagină acum.
×
×
  • Create New...

 Functionarea acestui site este sustinuta de cele cateva bannere afisate intre posturi. Ar fi o placere pentru noi daca ar fi adaugat site-ul nostru in lista de exceptii ad-block in browserul tau. Promitem si veti vedea ca nu avem reclame intruzive si nici deranjante (nimic cu sunet,video sau all-screen). Multumim!